欢迎您的来电
13333079818
动态分类
DYNAMIC CATEGORY如何用电捕焦油器净化炭素焙烧炉烟气?
文章摘要:
慧阳环保针对炭素焙烧炉的烟气特点及以往治理烟气经验,采用电捕焦油器技术对炭素厂焙烧炉烟气进行治理,达到了净化气体—沥青烟的目的。
碳素焙烧炉烟气中含有大量焦油蒸气,对周围环境造成严重危害。慧阳环保针对炭素焙烧炉的烟气特点及以往治理烟气经验,采用电捕焦油器技术对炭素厂焙烧炉烟气进行治理,达到了高 效净化有 害气体—沥青烟的目的。

炭素焙烧炉电捕焦油器方案沥青烟气净化系统主要流程为:
含尘、沥青油的烟气自焙烧炉车间南端地下烟道引出后进入调质降温塔进行调质、降温,调质降温后的烟气首先 进入预收尘器进行初步预收尘,预收尘后主要含沥青油的烟气进入电捕焦油器进行净化,净化后的洁净气体由风机入主烟囱后排空。
考虑风机的检修及清理问题、电捕焦油器的检修及清理问题,风机设为两套,即一用一备。电捕焦油器设烟风管道旁路系统,以备电捕焦油器检修、清理时烟风做100%旁路等,工艺流程主要包括如下内容:
1、风机系统电源出现故障时,通过人工管道阀切换,烟气直接排入烟囱;
2、电场清理时,风机将抽取烟道内烟气直接排空;
3、一台风机故障或清理时,可启动另一台风机进行正常烟气净化工作;
4、预收尘器的在线粉尘清理;
5、预收尘器的离线粉尘清理;
6、调质降温塔的在线粉尘清理;
7、调质降温塔的离线粉尘清理;
8、调质降温塔自动温度控制喷淋;
9、系统故障时进行高分贝声光报警;
10、系统着火时消防系统的自动切换、启动;消防系统的定时自运行试验;消防系统的试验故障报警;清灰系统的报警提示;消防系统解除后净化系统的自动恢复运行。
以上方案设计的沥青烟气净化系统为高配置净化系统,集运行、报警、消防、切换、旁路、恢复等过程的全自动化,可达到系统设备的高度可 靠运行。
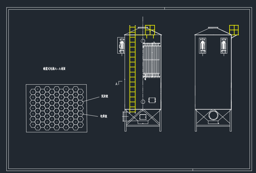
蜂窝式电捕焦油器系统结构图如下:

碳素厂电捕焦油除尘器系统工艺过程
(1)含粉尘、沥青油的烟气自焙烧车间地下烟道引出后,首先从调质降温塔上端进入调质降温塔进行调质、降温,然后进入预收尘器进行初步预收尘,降温、预收尘后的含很少量粉尘和较多量沥青油的烟气进入电捕焦油器进行焦油捕集,净化后的洁净气体进入风机, 后进入烟囱排入大气;
(2)捕集下来的粉尘和沥青油分别储存在调质降温塔、预收尘器和电捕焦油器的锥形灰斗内;
(3)灰斗内的清洗装置将这些粉尘、沥青油不停的清洗,冲入灰斗下的循环水池内;
(4)操作人员周期性的将这些粉尘泥、沥青油运走;
(5)当净化系统正常运行时,粉尘泥、沥青油运走周期一般为一个星期。当系统正常运行3~5天时,操作人员要对电捕焦油器的阳极排管进行清理一次:在控制室内用手按动清洗按钮一次,此时系统将按预定设置的程序进行自动切换,自动清洗电场和预收尘器。待电场和预收尘器清洗完毕后,系统将自动恢复运行,不再需要人工操作。
(6)用同样的方式清洗调质降温塔。清洗时所用物质为92~97℃热水,热水来源为一备用20m3热水池,该热水池中的热水来源为自来水通入蒸汽(见后面叙述)。
(7)当系统发出强烈声光报警时,说明系统有着火现象发生,此时操作人员应不需惊慌,不需动手操作,只需观察高压电控柜是否切断电源、管道切换阀9是否开启、管道切换阀2、3等是否关闭。观察风机是否自动停止运行,观察消防泵是否自动运行。如果这些本应当自动切换的设备没有完成自动工作,则可临时进行手动切换,以保 证消防灭火的正常进行。








