欢迎您的来电
13333079818
动态分类
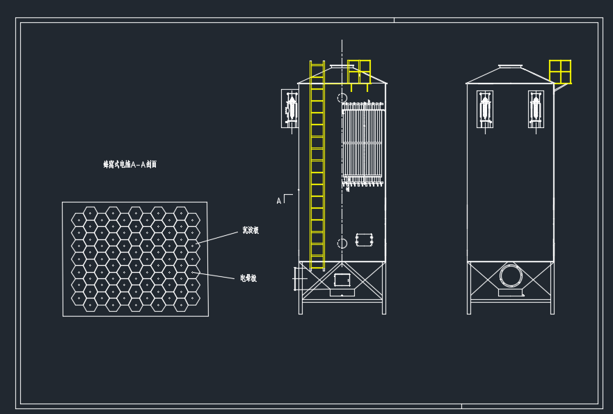
DYNAMIC CATEGORY电捕焦油器的结构设计图
文章摘要:
慧阳公司生产的电捕焦油器、蜂窝式除焦油器广泛应用于化肥化工、焦化、建材、医药、冶金、城市煤气、陶瓷等行业,并以产品、高技术水准、高服务质量深受广大用户
电捕焦油器部件组成:由壳体、沉淀极、电晕极、上下吊架、气体再分布板、蒸汽吹洗管、绝缘箱和馈电箱等部件组成,主要四大部分如下:
筒体:筒体是圆筒形的(内径根据煤气流量决定),并带有封头,筒体上部设有出气管,下部设有进气管,并设有两个人孔和一个防 爆阀。
沉淀极管束:沉淀极管束是由管束组成,并与筒体上、下部相通。
电晕电极:电晕电极装置通过吊杆悬吊在顶部的绝缘箱内,它由上部吊杆及拉杆、上下框架、电晕电极导线、重锤组成。
电器绝缘箱:绝缘箱设在筒体顶部,它是悬吊电晕电极装置的圆形箱体。内部设有悬吊支架、高压瓷瓶、加热夹套组成。
结构图如下:

化工厂、碳素厂、沥青搅拌站电捕焦油器的工作原理:
高压直流电源产生的负高压,接入电晕极(阴极),它与沉淀极(阳极)之间产生电场,电场强度超过一 定极 限后在阴阳两极间即产生电晕放电。此时流经电场区的气体发生电离,产生大量的离子和电子。周围可听见强烈的电磁风声,光线暗时可见紫兰色电晕。通过电场的煤气中的焦油、粉尘、水雾等粒子与离子或电子结合而荷电,在电场力的作用下向两极运动。由于电子质量小,运动速度 快,空间分布广,所以主要是荷负电的粒子向沉淀极运动。到达沉淀极板中和后,依靠残存的静电引力和分子间凝聚力首先吸附于沉淀极,而后靠自身重力沿极板下落,通过焦油出口排出。

慧阳公司生产的电捕焦油器、蜂窝式除焦油器目前已在全 国各地广泛使用,如化肥化工、焦化、建材、医药、冶金、城市煤气、陶瓷等行业,并以高 质量产品、高技术水准、高服务质量深受广大用户信赖和赞许。








