欢迎您的来电
13333079818
动态分类
DYNAMIC CATEGORY高炉出铁场除尘器的存在问题、改造内容及技术
2018-10-13 16:44:28
文章摘要:
慧阳环保公司结合高炉出铁场烟尘治理的实践操作经验,对高炉出铁场除尘器存在的问题进行改造,使投资降低50%左右,既达到了环保治理标准,又取得明显的经济效益。
慧阳环保公司结合高炉出铁场烟尘治理的实践操作经验,阐述了高炉出铁场除尘器技术的应用及成功经验。我公司设计而成的出铁场除尘设备可以通过加强一次烟尘控制,尘源点密封措施,达到控制二次烟尘污染的效果。因而减少了控制二次烟尘污染的投资,使出铁场烟尘治理的投资降低50%左右,既达到了环保治理标准,又取得明显的经济效益。
高炉出铁场除尘系统的治理标准
(1) 排放浓度<30mg/m3;
(2) 岗位粉尘浓度<10mg/m3;
(3) 与生产设备同步开机率为100%。

高炉出铁场除尘设备环境治理的技术要求
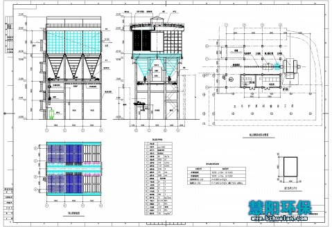
(1) 将出铁场除尘与炉顶上料除尘划分为两个独立的除尘系统。
(2) 解决高炉开、堵铁口时二次烟尘污染的问题。
(3) 除尘风机选用双吸、双支撑引风机,并采用电机变频调速。选用低压脉冲布。
(4) 除尘设备的选型要坚持、、运行稳定、除尘、故障率低、降耗的原则。
(5) 取消主铁沟水冷沟盖及吊盖机,改为移动式顶吸水冷除尘罩。并将顶吸罩与炉顶上料除尘划入一个系统。
(6) 将摆动溜槽除尘罩基础加高,容积加大,减少侧面吸尘点,增加顶部吸尘点的风量。
(7) 将渣铁分离器除尘罩及渣、铁沟上部的密封除尘沟盖加高加宽。并增加渣铁分离器除尘罩的风量。

高炉出铁场除尘器存在问题、改造内容及技术特点
【一】除尘工艺存在的问题
①高炉出铁场及炉顶上料尘源点扬尘均由炉前除尘器控制,因除尘风机调速运行,出铁时,风机调高速容易磨漏炉顶上料除尘管道,出完铁风机调低速时,又容易造成炉顶上料除尘管道积灰,即增加了设备的维修量,又造成炉顶上料除尘效果不稳定。
②主出铁沟采用移动式水冷沟盖盖在主铁沟上控制出铁时烟尘污染,但是,当开口机钻开出铁口的过程中和泥炮堵铁口的过程中,因除尘沟盖移开主沟位置,且主沟上方无吸尘管道及吸尘罩,所以出铁口钻眼、堵口过程中主铁沟烟尘未控制,烟尘直接排人大气造成二次污染。
③铁口只在一侧设置了吸尘点,除尘风量明显不足,一次烟尘未控制;渣铁分离器密封罩容积小,除尘风量也小,除尘效果较差;摆动溜槽除尘罩设置了三个吸尘点,其中两个侧吸点管道积灰严重,造成除尘风量不足,除尘效果较差;还有渣、铁沟密封沟盖,因为宽度和高度偏小,造成沟盖既容易烧毁,又影响除尘效果。
【二】出铁场除尘设备的工艺改造内容及技术特点
①将出铁场除尘划分为大小两个独立的除尘系统,大系统控制出铁口、渣铁分离器、摆动溜槽和渣、铁沟等尘源点。小系统控制炉顶上料和出铁场主沟尘源点。
②将炉顶上料除尘与出铁场主铁沟顶吸罩除尘划分为一个除尘系统,由新建的一台小型除尘器对该系统烟尘进行净化处理,并对炉顶上料皮带机机头和换向溜槽工艺密封设施进行了改造和完善,既解决了除尘管道磨漏和积灰的问题,又了该系统尘源点的除尘效果。
③出铁口由一侧设置吸尘罩改为两侧均设置了吸尘罩,并增加了除尘风量,使一次除尘效果达到90%以上,同时在主铁沟上方安装了移动式水冷顶吸除尘罩,取代了原来的移动式水冷沟盖,既不影响泥炮和开口机的正常操作,又可将二次烟尘通过顶吸除尘设施吸入除尘器,从而解决了开、堵铁口时铁口及主铁沟二次烟尘污染的问题。
④将渣 、铁分离器除尘罩和摆动溜槽除尘罩的容积加大,并增加了除尘风量,同时,将渣、铁沟上的沟盖加高、加宽,使整个渣、铁沟形成了负压区,的控制了出铁过程中的烟尘污染。同时解决了铁沟沟盖被经常烧坏的问题。
⑤对除尘管道的走向进行了调整,尽量减少管网阻力,同时,在管道易积灰的部位设置了沉降室和清灰孔。便于经常管道积灰,以保持除尘系统风量的平衡。








