欢迎您的来电
13333079818
动态分类
DYNAMIC CATEGORY蜂窝式电捕焦油器结构及工作原理简要分析
文章摘要:
慧阳环保定制安装维修蜂窝式电捕焦油器、高压电捕焦油器、湿式电捕焦油器、除焦油器、电捕焦油器配件、焦油式静电除尘器等,一站式服务,设备运转正常,排污达标
据研究分析:在以煤为原料的化肥生产流程中,半水煤气中携带的焦油雾粒对生产具有很大的危害性。首 先,煤焦油会导致氮氢气压缩机的进气阀门堵塞,油雾还会引起催化剂中毒。通过调查,如果在生产流程中不设置电捕焦油器或者选用的电捕焦油器的捕集效果不佳时,因阀孔被焦油堵塞以及阀片弹跳动作受阻,打气量不断减少造成的经济损失是相当可观的。因此,合理的配备电捕焦油器是非常值得重视的一个问题。

慧阳生产的蜂窝式电捕焦油器是利用焦油雾滴在高压静电场力作用下,带正负电荷的焦油雾滴,分别向沉淀极和电晕极移动,到达沉淀极和电晕极的焦油雾滴,在重力作用下,向电捕下方流动,到达底部排出器外。
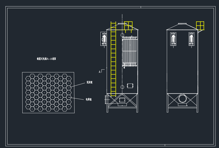
蜂窝式电捕焦油器结构及工作原理:
电捕焦油器由筒体、沉淀极、电晕极、上下吊架、气体再分布板、绝缘箱和馈电箱等部件组成。其工作原理:即在金属导线与金属管壁间施加高压直流电,以维持足以使气体产生电捕的电场,使阴阳之间形成电晕区。按电场理论, 正离子吸附于带负电的电晕,负离子吸附于带正电的沉淀;所有被电捕的正负离子均充满电晕与沉淀之间的整个空间。当含焦油雾滴等杂质的气体通过该电场时,吸附了负离子和电子的杂质在电场库伦力的作用下,移动到沉淀后释放出所带电荷,并吸附于沉淀上,从而达到净化气体的目的,通常称为荷电现象。当吸附于沉淀上的杂质量增加到大于其附着力时,会自动向下流趟,从电捕焦油器底部排出,净气体则从电捕焦油器上部离开并进入下道工序。当烟气通过电捕焦油器时,烟气中的尘埃和焦油在电荷作用下被电捕,向带有电荷的金属线和管壁运动,并失去电荷,在重力的作用下,落到电捕焦油器底部流出,从而使污染物得以降解去除。

慧阳环保公司专 业定制安装维修蜂窝式电捕焦油器、高压电捕焦油器、湿式电捕焦油器、除焦油器、电捕焦油器配件、焦油式静电除尘器等,一站式服务,确 保设备运转正常,排污达标,环评一次通过。








