欢迎您的来电
13333079818
动态分类
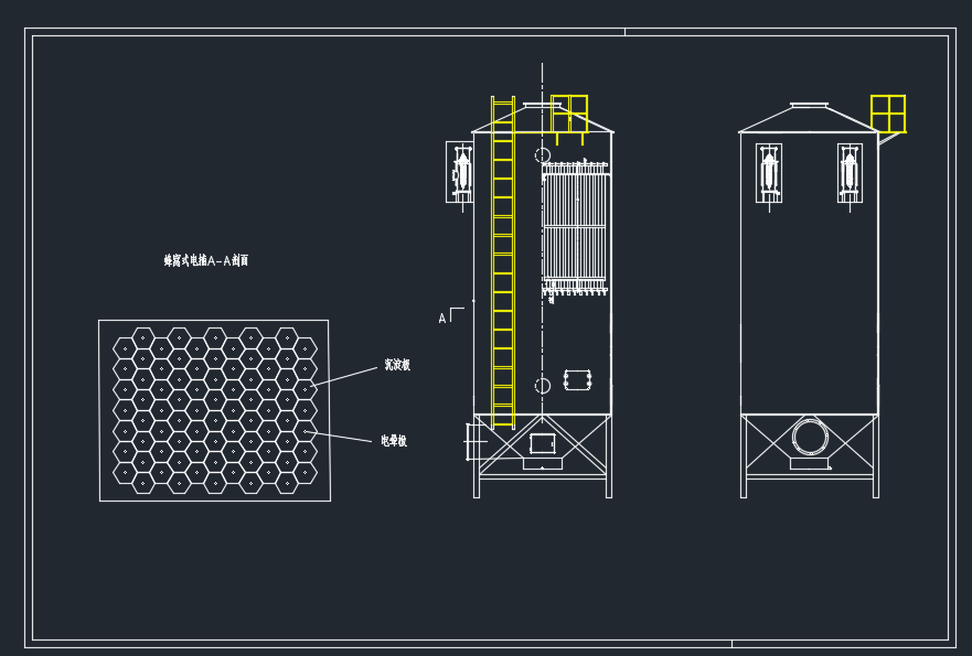
DYNAMIC CATEGORY电捕焦油器本体与电气安装常识
文章摘要:
一台好的电捕焦油器是否能够正常的运转且顺利地投入项目使用,其中一个关键性的环节就是设备的安装,安装过程中需要做到对各个零部件安装的质量把控,只有设备运
一台好的电捕焦油器是否能够正常的运转且顺利地投入项目使用,其中一个关键性的环节就是设备的安装,安装过程中需要做到对各个零部件安装的质量把控,只有设备运转良好,才能保 证施工的正常顺利运行,从而实现工程施工质量符合行业规范标准,满足建设单位的要求。下面慧阳环保就来具体的说说电捕焦油器设备的安装常识。

首 先,电捕焦油器的本体安装须知以下八点:
1、安装位置视工艺状况而定,可能情况下,本设备可以并联使用,如有G高净化要求,也可以多台串联使用。
2、安装前需按图纸需要制作本体基础,本体安装以沉淀极为基准,其垂直偏差要求≤1‰,校正后焊接牢固或锁紧地脚螺栓。施工检修用爬梯、护栏、平台由用户按随机图纸或有关标准自行制作焊接。
3、为维修方便,不影响正常生产,建议加设旁通管道(复线)或并联使用。
4、绝缘子和进线套管应清洁干燥,进线套管所有密封垫均应压紧至变形,套管压紧螺栓在上下吊架及电晕线安装完毕后对称拧紧,绝缘箱内不得有灰尘、油污、水分等杂质。
5、上吊架的底部距沉淀极300mm,偏差不大于10 mm,下吊架距沉淀极距离不小于300mm。
6、电晕级应沉淀极正中,偏差小于5mm。
7、上下吊架拉杆安装偏差不大于10mm。
8、关闭上下人孔及各种阀门,电捕下液槽注水。以35KPa(3500mmH2o)表压空气(或等压蒸汽)进行整体严密性试验,试验时缓慢升压,达到压力后,停止给气,试验2小时(蒸汽试压30分钟),允许每小时泄漏率1%。
除电捕焦油器本体安装外,电捕焦油器的电气安装也非常重要,须知以下四点:
1、外观检查。检查运输过程中有无机械性损伤,各种零件是否松动,高压发生器有无渗油。松动器件要拧紧,损伤器件应予换。
2、按图连好恒流源控制柜、高压发生器各种连线,并仔细检查,确 保接线正确并合乎规范。
3、控制柜、高压发生器、高压电缆外屏蔽及本体均应可 靠接地,接地应有专 用接地极,不得用管道代替。
4、控制柜户内使用,要求环境清洁,通风良好,无严重化学腐蚀和易燃气体。前后距墙壁距离不低于1米。

以上就是关于蜂窝式电捕焦油器的安装常识,如果还有哪些没有讲到,或是不明白,请来电咨询技术部,电话13333079818穆经理,我们有专 业人员为您解答疑惑。








