欢迎您的来电
13333079818
动态分类
DYNAMIC CATEGORY内蒙10吨燃煤锅炉除尘器设计特点
文章摘要:
慧阳公司从事各种锅炉、工业炉窑的除尘工程设计施工改造,设计的8吨小型燃煤锅炉除尘、15T燃煤锅炉除尘、75吨流化床锅炉除尘、4吨生物质锅炉除尘等均可以很好的解
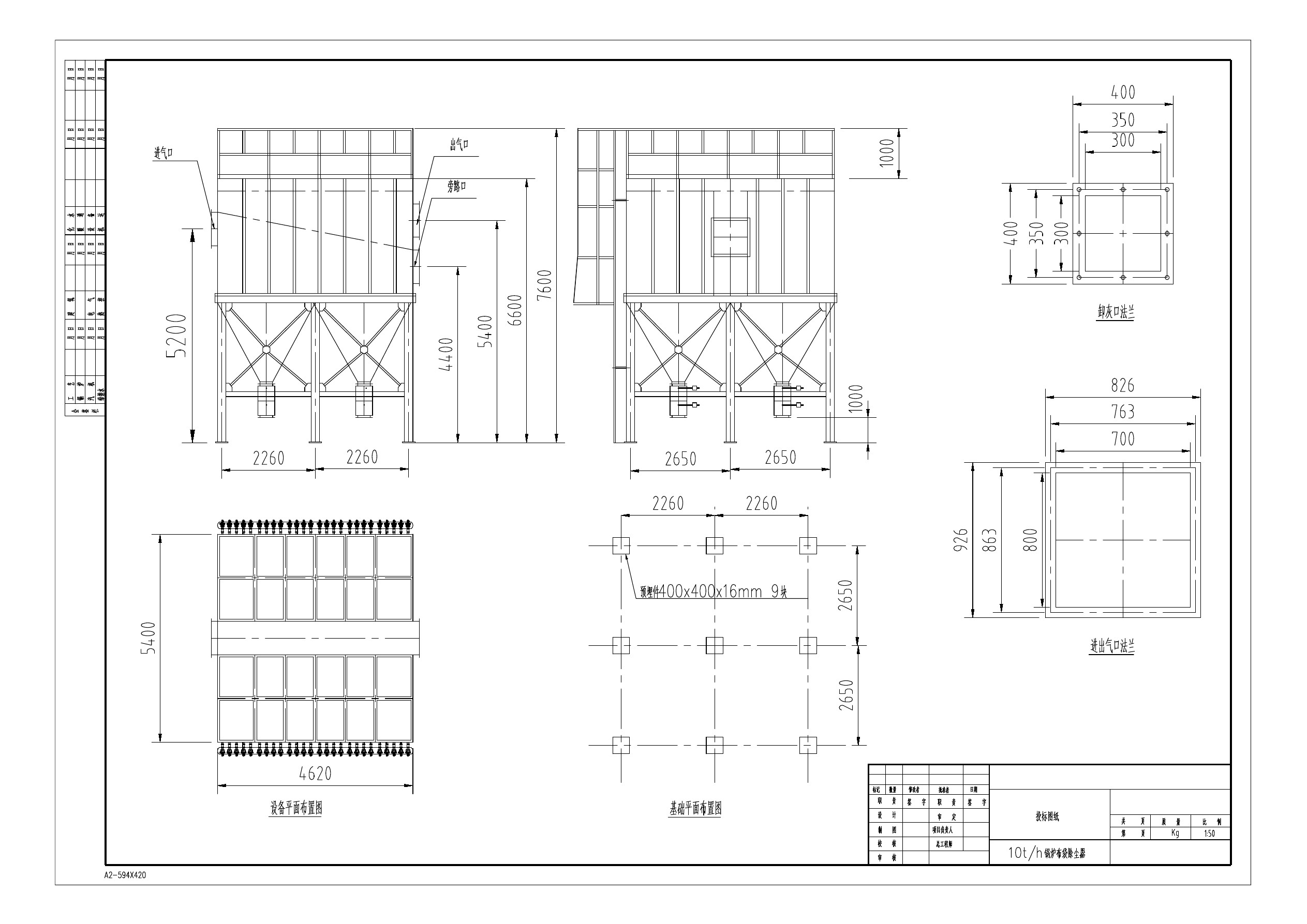
内蒙10T锅炉除尘器设计方案
1、10T锅炉除尘方案采用LCMD型长袋脉冲除尘器。除尘设备采用一炉一套独立的系统,即所有的工艺、电气、控制均为一炉一套。
2、10T锅炉除尘器过滤面积的确定:为确 保锅炉的连续运行不受除尘设备运行或分区停运的限制,在负荷调整时有良好的、适宜的调节特性,在电厂运行的条件下能可 靠和稳定地连续运行,我们选定除尘器的过滤风速小于0.9m/min,经计算并合理考虑除尘器的布置。10T锅炉确定本方案除尘器的过滤面积为540m2,能满足以上要求。540 m2除尘器布置:1排共1个单元,除尘器共有滤袋数量540条。总过滤面积540m2/台。
3、滤袋采用φ133×2500mm标准规格,均采用耐斯特滤料PPS+PTFE浸渍处理。
4、除尘器采用外滤式过滤方式,除尘器的滤袋利用弹簧涨圈与花板自锁联接,干净空气与含尘气体的分隔。滤袋由袋笼所支撑。
5、在清灰时由PLC发出脉冲信号给电磁脉冲阀(上海袋配),通过喷吹管喷出压缩空气,使滤袋径向变形抖落灰尘。
6、除尘器设有顶部防雨棚,防止在环境条件下结露现象的发生及保护除尘器顶部装置。
7、除尘系统设置了旁路管道,在锅炉投油、烟温异常、“四管”爆裂等状态下使烟气经旁路管道排放而不经过滤袋,从而有 效地保护除尘器。
8、除尘器设置烟气温度监测装置,当烟气温度过高或过低,超过预设报警值时,自动打开旁路系统阀门排放烟气,保护滤袋。
9、除尘器进风气流均布装置,使进入除尘器的含尘气体均匀地分布在每个滤袋,有 效地防止了清灰过程中滤袋间的碰撞和磨擦,有利于滤袋使用寿命的延长。
10、除尘器灰斗设置电加热装置,防止积灰板结;振打清灰装置,及时清 除除尘器内的积灰,保 证了除尘器灰斗卸灰的顺利进行。
11、输灰系统采用气力输送斜槽+低压气力输送装置,将粉煤灰送至灰仓,装车运走。
12、由于增加了布袋除尘器,系统阻力约增加1500Pa左右,故引风机需要增加风压,建议换或改造引风机风压提到5000Pa以上。

10吨锅炉布袋除尘器的安装及检修工作要求
1、为便于运输,设备均为解体发运。收到设备后,先按装箱清单检查并做好入库工作。如有缺件、损坏,我方及时补缺、修 复。
2、设备安装前应对基础进行检查校对,合格后才能安装。安装工作应严格按照图纸、安装工序进行。滤袋袋笼须连同包装箱一起吊到除尘器顶部后逐个安装,安装的同时须检查袋笼有无变形、损坏。
3、滤袋安装时,要保 证滤袋远离带尖带棱物,以免刮伤滤袋。滤袋的纵向接缝应朝一个方向,背对进风口。将滤袋卷成zui小使滤料和花板间的接触zui小。
4、调试前应对传动机构、装置进行检查,对转动、滑动部分加油润滑,运转灵活。
5、除尘器具有离线检修功能,通过对离线阀和进风口手动调节的操作,可使除尘器单仓完 全离线,从而方便除尘器工作状况下的不停机检修。
6、除尘器低于0.9m/min的全过滤风速的选定,允许除尘器滤袋破损率在5%以下时仅采用封堵措施而不对破损滤袋进行换,以减少7、维护工作量而除尘器的正常运行。
除尘器上箱体(即净气室)的设计了除尘器的日常维护检修工作都在机外执行,改 善了工作环境。

慧阳10吨燃煤锅炉除尘器的设计特点:
1、除尘器本体及钢结构的设计充分考虑了现场安装的要求,全部构件均采用模块化结构,以充分简化现场安装步骤,尽量减少现场焊接,确 保工程质量。
2、除尘器设有脉冲阀防雨箱、排水设施、检修扶梯平台,灰斗和卸灰阀门的连接法兰上檐设计有突出部分,避免了雨水的下衍损坏密封材料。
3、布袋除尘器采用顶部揭盖式结构,检修方便,密封严密,有 效防止了检修时因通风不畅造成的安 全隐患。各项设施的设计采用人性化理念,保护除尘器顶部装置、方便人员检修、使用和管理。
4、除尘器的灰斗能承受长期的温度、湿度变化和振动,并考虑防 腐性能,灰斗设检修门,所有检修门、入孔采用快开式,开启灵活,密封严密。
5、除尘器具有离线检修功能,通过对离线阀和进风口手动调节的操作,可使除尘器单仓完 全离线,从而方便除尘器工作状况下的不停机检修。
6、除尘器的保温设计能满足除尘器内部不出现结露的要求,外装饰采用彩钢板,所有易被踩踏的保温具有良好的防护措施。外装饰平整、光滑、美观,颜色可由用户选定。
7、我公司在除尘器系统上所采用的电机均符合我国标准和IEC标准,选用的电机型式与它所驱动的设备、运行设计、使用环境和维修要求相适应。
8、该型号除尘器的脉冲清灰控制采用手动和自动两种方式,可相互转换。自动控制采用压差(定阻)和定时控制方式,可相互转换。
9、卸灰系统灰仓清堵空气炮采用自动和现场控制两种方式,与输灰系统连锁。除尘器灰斗设有料位指示,料位信号在机房控制柜上显示并报警。现场控制由机旁操作箱来完成,并向主控系统提供各设备运行状态信号。

慧阳环保公司现主要从事各种锅炉、工业炉窑的除尘工程设计施工改造,我公司设计的8吨小型燃煤锅炉除尘、15T燃煤锅炉除尘、75吨流化床锅炉除尘、4吨生物质锅炉除尘等均可以很好的解决以前锅炉温度过高和除尘滤袋经常糊袋的一系列问题,除尘 效率 高达99 %,达到环保要求,因此获得广大用户的赞许!








