网站首页
企业简介
产品中心
企业动态
信息中心
技术文档
联系我们
当前位置:
返回首页
>
信息中心
>
欢迎您的来电
13333079818
动态分类
DYNAMIC CATEGORY
技术文档
企业动态
信息中心
热门产品
防 爆布袋除尘器
煤矿破碎机除尘器
建材厂破碎车间除尘器
破碎车间除尘器
煤矿防 爆除尘器
PPC64-6型气箱式脉冲除尘器
信息动态
焦化厂干熄焦除尘器运行维护核心要点
废金属破碎机除尘器核心功能与应用优势
熔炼炉布袋除尘器:金属冶炼行业高温烟尘治理核心设备
煤矿布袋除尘器核心功能与工作原理(含应用优势)
水泥厂回转窑除尘器改造技术升级与低排放解决方案
高炉出铁场除尘器、矿槽皮带除尘系统设计图
2018-10-05 15:54:56
文章摘要:
【引用】 高炉出铁场除尘器、矿槽除尘器、皮带除尘方案设计图如下(如有疑问请联系慧阳技术部):
【引用】 高炉出铁场除尘、矿槽除尘、皮带除尘方案设计图如下(如有疑问请联系慧阳技术部):
一、
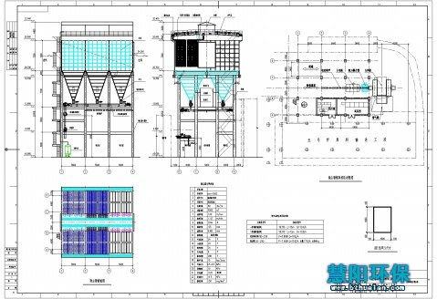
高炉出铁场除尘器
设计图
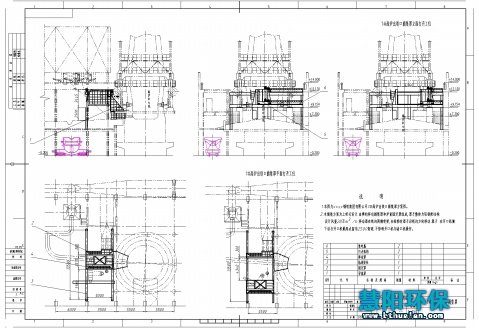
二、出铁口集烟罩设计图
三、矿槽槽上捕集罩设计图
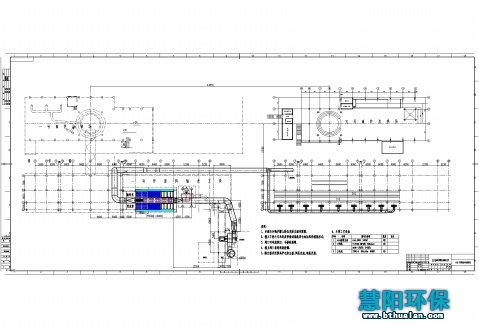
四、矿槽槽上总布置图
五、
高炉矿槽除尘器
设计图
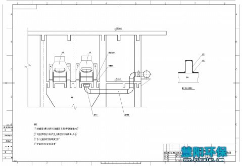
六、铁水包集烟罩设计图
七、
振动筛除尘器
罩设计图
八、槽下受料口捕集罩图
上一篇:
高炉出铁场除尘器处理风量的确定方法及注意事
下一篇:
燃煤锅炉除尘器在电厂取得成功运用的因素